Технический дизайн проект. Планировка. Рабочие чертежи
2 000 - 2 500 ₸
0 / 35
Параметры
Описание
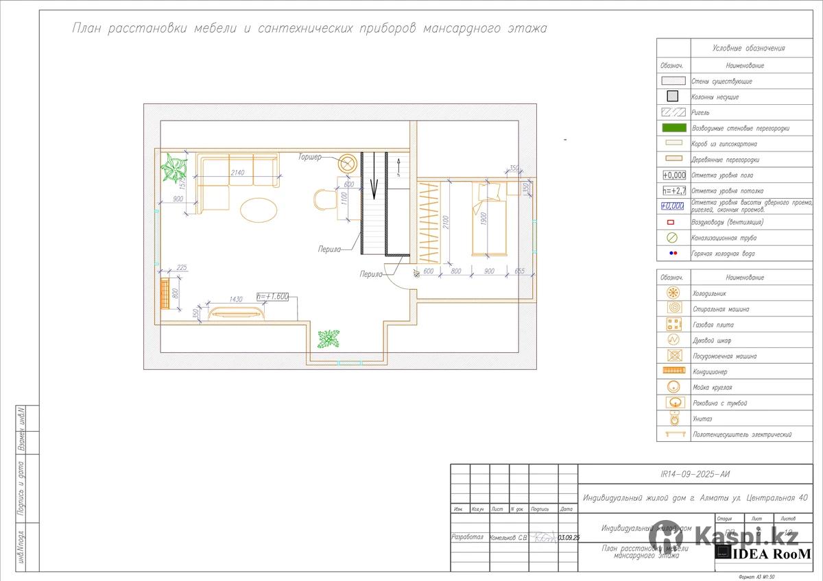
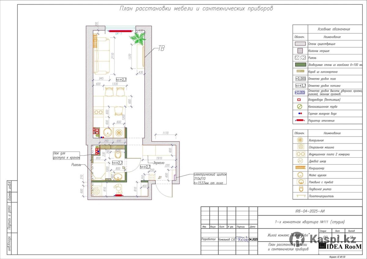
Предлагаю услуги по разработке полного комплекта рабочих чертежей необходимых для точного и качественного ремонта вашего дизайн-проекта интерьера. 📐 В комплект входят: -обмерочный план помещения; -план демонтажа перегородок; -план монтажа перегородок (планировочное решение); -план расстановки мебели и сантехнических приборов; -план полов; -экспликация полов; -план потолков; -план розеток; -план осветительных приборов; -план выключателей; -план теплых полов; -развертки стен (дополнительно при необходимости). Выполнение 3D вида планировки в программе SketchUp по желанию. 📏Измерительный инструмент: профессиональная лазерная рулетка BOSH GLM50-27C с функцией Bluetooth для передачи данных, рулетка BOSH GLM 20. Лазерные рулетки с минимальной погрешностью в измерениях. ✅ Работаю по готовому дизайн-проекту или помогаю адаптировать концепцию под реализацию. ✅ Чертежи готовлю по эргономике, по вашему ТЗ и визуализациям. ✅ Учитывают строительные нормы и пожелания подрядчиков. ✅ Работаю в AutoCAD. 📦 Сдаю чертежи поэтапно для удобства согласования. 📎 Вы получаете понятную «дорожную карту» для ремонта без ошибок и переделок. А бригада выполнит работы быстро и качественно. 📍 Надежный партнер для аутсорса дизайнеров. Беру на себя техническую часть — вы фокусируетесь на креативе. Полный комплект чертежей для строителей - 1500- 2000тг/м2 Рассчитывается индивидуально в зависимости от объема работ. Просьба писать на звонки не всегда могу ответить.
Сергей К.
Исполнитель
Все объявления-
-
-
-
-
-
-
-
-
-
-
-
-
-
-
-
-
-
-
-


































