Услуги архитектора-проектировщика Проекты домов в Шымкенте
от 20 000 ₸
0 / 14
Параметры
Возможен выезд:
Да
Описание
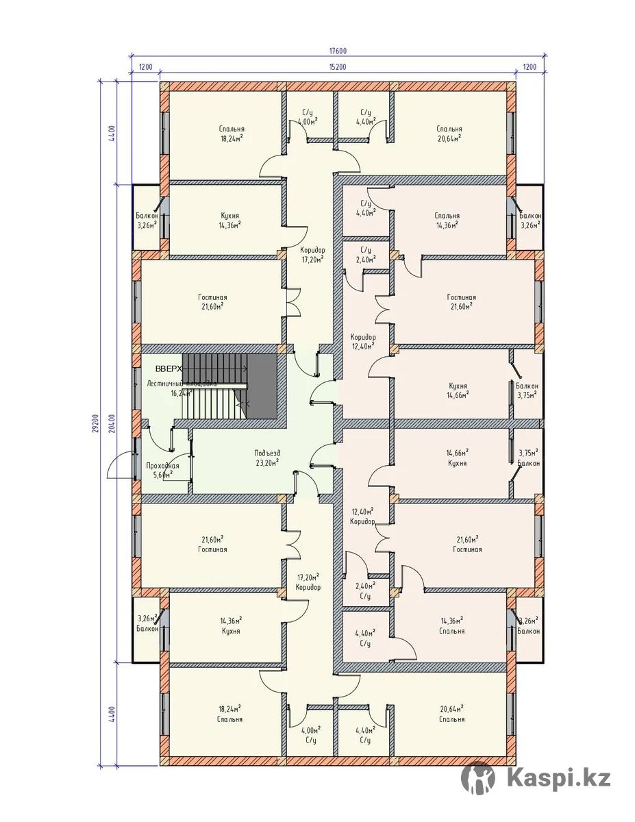
📐 Профессиональные архитектурные и проектные услуги под ключ: — Проектирование частных домов, коттеджей, коммерческих зданий — Перепланировка и реконструкция помещений — 3D-визуализация и дизайн фасадов — Рабочие чертежи и техническая документация — Помощь в согласовании проекта 💬 Индивидуальный подход, точность, соблюдение норм и сроков. 💡 Бесплатная консультация и предварительный расчет стоимости. 📍 Работаю по городу Шымкент и области. 📞 Связь: звоните или пишите

Еркебұлан Н.
Исполнитель
Шымкент, проспект Байдибек би, 24Б
Зарегистрирован 6 лет
31 января
59 просмотров
Все объявления-
-
-
-
-
-
-
-
-
-
-
-
-
-
-
-
-
-
-
-













