КМ / КМД металлоконструкций любой сложности Tekla Structures
Договорная
0 / 6
Параметры
Возможен выезд:
Да
Описание
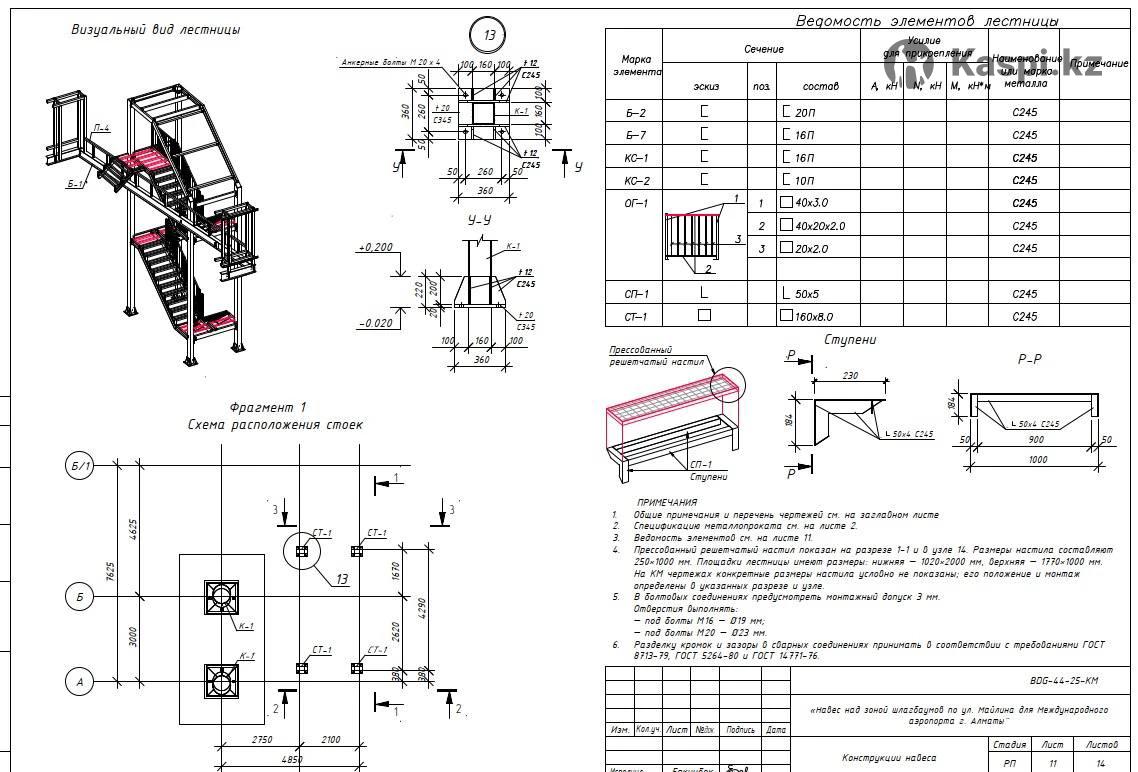
Инженер-конструктор с 5-летним профессиональным опытом в сфере металлоконструкций. Выполняю КМ и КМД любой сложности в Tekla Structures с полным сопровождением до производства. В состав работ входит: ▪ Разработка чертежей для изготовления (заводской комплект) ▪ Монтажные схемы (полноценная часть КМД) ▪ Деталировка элементов и узлов ▪ Спецификации металла, болтовых и сварных соединений ▪ Подготовка документации, полностью готовой для производства и монтажа Работаю по нормам, аккуратно, с пониманием требований завода и монтажных бригад. Удаленный формат работы. Стоимость — договорная, в зависимости от объема и сложности проекта. 📲 Связь через : #

Нұрберген Е.
Исполнитель
Алматы, Аэропортная улица, 58к2
Зарегистрирован 5 лет
14 января
35 просмотров
Все объявления-
-
-
-
-
-
-
-
-
-
-
-
-
-
-
-
-
-
-
-





