Чертежи для ремонта и строительства
от 1 500 ₸
0 / 4
Параметры
Описание
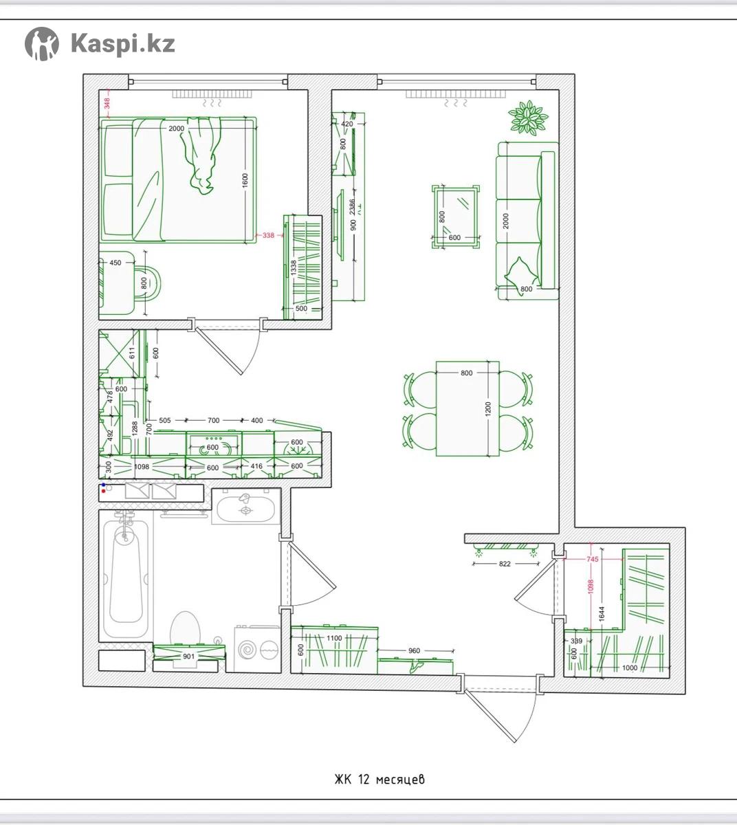
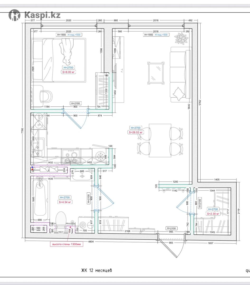
Жөндеу жұмыстарын жоспарлап жатырсыз ба немесе құрылыс бастап жатырсыз ба? Мен сізге 2–3 күн ішінде толық әрі түсінікті сызба жасап беремін! 📐 Не кіреді: ✔ Пәтер, үй немесе кеңсе жоспарлау сызбасы ✔ Қабырғалар, есіктер, терезелер және жиһаздардың орналасуы ✔ Розеткалар мен өшіргіштердің орналасуы (биіктіктерімен бірге) ✔ Барлық өлшемдер мен техникалық мәліметтер ✔ Таза, түсінікті әрі ыңғайлы формат 💡 Кімдерге пайдалы? ▪ Жаңа үй алғандарға — кеңістікті дұрыс ұйымдастыру үшін ▪ Жөндеу жасап жатқандарға — жұмысшыларға ыңғайлы болу үшін ▪ Интерьер дизайнерлеріне — жобаның негізі ретінде ▪ Құрылысшылар мен бригадаларға — өйткені көпшілігі дайын сызбасыз жұмысты бастамайды ⏱ Дайын болу мерзімі: небәрі 2–3 күн 📞 Жазыңыз немесе қоңырау шалыңыз — тез әрі сапалы жасап беремін! Планируете ремонт или начинаете стройку? Я сделаю для вас подробный и понятный чертеж всего за 2–3 дня! 📐 Что входит: ✔ Планировка квартиры, дома или офиса ✔ Указание стен, дверей, окон, мебели ✔ Расположение розеток и выключателей с высотами ✔ Все размеры и технические детали ✔ Аккуратный и понятный формат 💡 Кому это нужно? ▪ Новоселам — чтобы правильно организовать пространство ▪ Тем, кто делает ремонт — для удобства рабочих ▪ Дизайнерам интерьера — как основа проекта ▪ Строителям и бригадам — ведь многие без готового чертежа не начинают работу ⏱ Срок: всего 2–3 дня 📞 Пишите/звоните — сделаю быстро и качественно!

Меруерт К.
Исполнитель
Все объявления-
-
-
-
-
-
-
-
-
-
-
-
-
-
-
-
-
-
-
-



